Договорная
Конструктор проектировщик корпусной мебели

Ремонт, строительство
1 месяц назад
102
19209

Конструктор проектировщик корпусной мебели

Договорная
Категория: Окажу услуги > Ремонт, строительство
Размещено: 1 месяц назад
Просмотров: 102
Номер объявления: 19209
В избранное

Описание

Меня зовут Сергей , я — конструктор корпусной и встроенной мебели с опытом более 10 лет.

За эти годы я успел поработать на всех этапах мебельного производства:

  • дизайнером мебели — создавал проекты и придумывал решения для клиентов,

  • на производстве — делал мебель с нуля,

  • сборщиком мебели — собирал готовые изделия,

  • и, наконец, стал конструктором мебели.

Этот путь помог мне увидеть мебель изнутри: от идеи и эскиза до готового изделия у клиента.

Чем я занимаюсь?

Сегодня я работаю на фрилансе и беру заказы на проектирование мебели

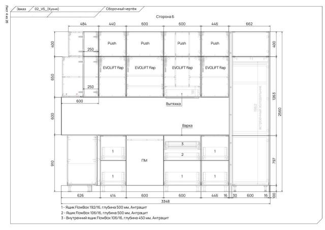
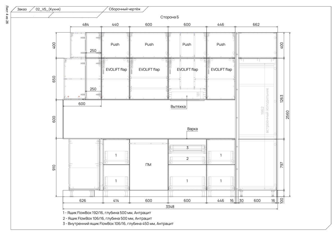
Моя работа — подготовить полный пакет документов для производства, а именно:

  • 3D-модель,

  • карты кроя и чертежи на раскрой,

  • документы для присадки (ЧПУ или ручной вариант),

  • сборочные чертежи,

  • спецификации по материалам, фурнитуре и заказным позициям.

📂 Всё это формирует комплект, который помогает запускать мебель в производство быстрее и с меньшими доработками.

Почему это важно?

Когда я работал в производстве и сборке, я часто видел одну и ту же картину:

  • красивые эскизы без технической точности,

  • рабочие чертежи неаккуратные и запутанные,

  • в итоге цех тратит время на уточнения, а сроки и расходы растут.

Сейчас моя задача как конструктора — минимизировать такие трудности.

Я делаю документы не только технически точными, но и структурированными и аккуратными: с рамками, подписями и понятной логикой.

Важно: я не заменяю дизайнера и не придумываю концепции мебели.

Моя работа начинается там, где дизайн уже утверждён: я перевожу его в технический язык, понятный производству.

Сергей
Сергей
1 активное объявление
Частное лицо
На Gidra 1 + мес.
Был(а) онлайн 1 нед. назад

Реквизиты автора

Сергей
Сергей
1 активное объявление
Частное лицо
На Gidra 1 + мес.
Был(а) онлайн 1 нед. назад
Отправить сообщение

Рекомендации по безопасности!

  • Доска объявлений в Германии Gidra.de не несёт ответственности за объявления, размещенные на сайте.
  • Gidra.de не занимается сбором пожертвований, трудоустройством за деньги, либо другими посредническими услугами. Мы не звоним, не пишем письма на емайлы о просьбах прислать нам Ваши данные о банковских счетах и другую важную личную информацию.
  • Избегайте мошенничества, встречайтесь с продавцом лично или оплачивайте через PayPal
  • Не продавайте и не покупайте за пределами Германии. Не принимайте к оплате чеки за пределами Германии
  • Для большей эффективности Вашего объявления, рекомендуем применять услугу Премиум+ (выделение цветом, поднятие объявления). Для полного управления своими объявлениями, советуем пройти регистрацию.